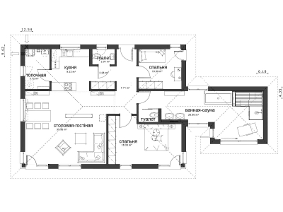
Современный стиль и невысокая стоимость по выкладке стен первого этажа из кирпича с утеплением из минераловатных плит привлекла заказчика к разработке данного проекта. Большая солнечная терраса зоздана на южной стороне дома, где будут собираться вместе все члены семьи. Внутренняя планировка создавалась максимально открытой и остекление стен является последним писком моды и отвечает всем принципам стиля модерн.Спальни дома предназначены для проживания 3 человек.
Конструктивное решение
Стены наружных ограждающих конструкций выполнено из кирпича толщиной 250мм и последующего утепление с легкой штукатурной системой. Внутренние перегородки выстроены из кирпича 120 мм. Перекрытие выполнено по грунту с утеплением и теплыми полами. Кровля является инверсионной плоской с покрытием из ПТО мембраны. Фундаменты – свайные ростверковые монолитные по толщине 300мм с утепленным наружным контуром и защищено битумной обмазочной гидроизоляцией.
Инженерное решение
На данном участке применяется индивидуальная система очистки сточных вод. На кровле располагается система солнечных коллекторов для будущего удешевления электроэнергии, обогрева помещения в зимний период, подогрева холодной воды. Около участка идет газопровод. Поэтому топочную оснастили газовым котлом типа Виссман.
Заказать проект дома в компании KAIUKOV очень просто
Мы предлагаем вам несколько удобных способов заказа:
- Оставить заявку на странице понравившегося проекта, воспользовавшись кнопкой «Заказать»
- Оставить заявку в Viber +4917668875459 или позвонить по телефону +375(44) 451-76-50
- Написать на электронную почту kay-alekha@yandex.ru
Больше контактной информации здесь Наши контакты
Если вам сложно определиться с проектом, не отчаивайтесь, наши специалисты помогут вам с выбором и предложат проект, от которого вы не сможете отказаться)
Характеристики проекта
| Этажность | 1 |
| Размеры, м | 12,62х11,72 |
| Площадь 1 этажа, м2 | 147,95 |
| Площадь 2 этажа, м2 | - |
| Гараж | навес |
| Стены | Кирпичные или блоки |
| Фундамент | свайный |
| Перекрытие | по грунту |
| Спальни | 2 |
- Архитектурный проект - 800,00 BYN
- Строительный проект - 5000,00 BYN
- Проект сетей - 800,00 BYN




